SoLaLa
Kennen Sie das auch ? Wohin mit den Klamotten abends - nicht mehr frisch genug für den Schrank, aber zu sauber für die Waschmaschine!
- also dann auf den " ich-trag-dich-morgen-nochmal-haufen" eine Zumutung fürs Auge ?!
Unsere Lösung - SoLaLa
Kennen Sie das auch ? Wohin mit den Klamotten abends - nicht mehr frisch genug für den Schrank, aber zu sauber für die Waschmaschine!
- also dann auf den " ich-trag-dich-morgen-nochmal-haufen" eine Zumutung fürs Auge ?!
Unsere Lösung - SoLaLa
Kosten sparen durch Eigeninitiative
Sie wünschen sich individuelle Einrichtungsmöbel? An Ihre Anforderung auf den Millimeter genau geplant und gefertigt?
Sie möchten Ihr eigenes Möbel mitgestalten? Sie möchten Ihren Einrichtungsgegenstand selber aufbauen oder zusammenbauen?
Sie haben Freude daran und ein gutes Gefühl, selbst mitzuwirken?
Aber Sie möchten auch Kosten sparen?
Wir zeigen Ihnen, wie es geht!
Unsere Lösung: Leistungsabgrenzung
Wir beraten Sie gern. Vielleicht haben Sie schon einen Entwurf oder eine Konstruktionszeichnung? Sie möchten lieber abholen als anliefern zu lassen, und Sie möchten die Montage selbst übernehmen? Auch wenn es hier nicht gleich funktionieren sollte, wir bieten Ihnen Starthilfe/Montagehilfe und zusätzlich das tolle Gefühl, das eigene Möbel ein Stück weit selbst gebaut zu haben?!
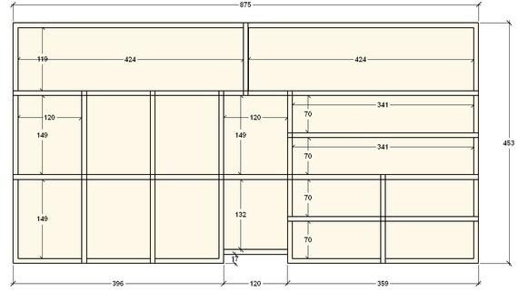
aktuelles Beispiel- nachfolgendes Projekt " Wohnzimmermöbel"- zum Umfang gehörten Möbelteile, Beschläge, Glas und LED-Beleuchtung
Unsere Website verwendet Cookies um eine bestmögliche Bereitstellung unserer Dienste zu ermöglichen. Mit der Nutzung unserer Website erklären Sie sich damit einverstanden, dass wir diese verwenden. Weitere Infos finden Sie in unserer Datenschutzerklärung.
